PSP nr 3 wzbogaci się o halę sportową
Za dwa lata uczniowie PSP nr 3 mają rozpocząć naukę w rozbudowanym obiekcie, poszerzonym o halę sportową.
- Szkoła zostanie rozbudowana o piękną i funkcjonalną halę sportową z pełnym zapleczem rozwojowym, salę siłowni, salę do fitnessu oraz do zajęć korekcyjnych. W ramach zadania zostanie również wybudowane zaplecze szatniowe, którego do tej pory uczniowie tej jednej z największych szkół w mieście nie posiadają. Warto podkreślić, że architektura projektu została w pełni dostosowana do klimatu starej części miasta- mówi prezydent Lucjusz Nadbereżny.
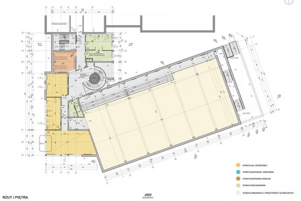
Budynek szkoły z salą gimnastyczną połączony zostanie przejściami na każdej kondygnacji (wejście bezpośrednio do strefy szatniowej). Na paterze będą znajdować się szatnie, sala sportowa i jej zaplecze. Na I piętrze wbudowane zostanie wejście na trybunę.
Również drugie piętro uzyska funkcjonalny podział: na strefę administracyjną (sekretariat oraz gabinet dyrekcji), strefę szatniową, szkolną oraz strefę sportową, gdzie znajdować się będą trzy sale: siłownia, sala do zajęć fitness oraz sala do zajęć korekcyjnych. Ostatnia kondygnacja mieścić będzie pomieszczenie wentylatorni oraz szatni szkolnej.
- W celu optymalnego doświetlenia hali sportowej najlepszym rozwiązaniem okazał się dach szedowy, bezpośrednio nawiązujący do wielkoprzemysłowych obiektów części Centralnego Okręgu Przemysłowego. Projektowane oraz istniejące bryły utworzyły cichy dziedziniec, na którym dzieci będą mogły spędzać przerwy oraz odbywać zajęcia lekcyjne w cieplejsze dni. Na jednej ze ścian przewidziano wykończenie z tynku pokrytego czarną farbą kredową, gdzie pojawi się motyw przewodni grafiki Centralnego Okręgu Przemysłowego. Ukazuje on "miasto w budowie" oddające postęp i nowoczesność kreującego się wówczas Miasta Stalowa Wola- mówi Lucjusz Nadbereżny.
Całkowita powierzchnia użytkowa obiektu będzie wynosiła 2 632,8 m2, z kolei kubatura budynku 24 024,6 m3. Wysokość obiektu mierzona do poziomu kalenicy będzie liczyć 11,98 m.
Zakończenie wszystkich prac ma nastąpić 31 lipca 2020 roku.
Przewiń do komentarzy








Komentarze