Centrum Aktywności Seniora w Centrum 4
We wtorek, na specjalnie zorganizowanej konferencji prasowej, poinformowano o przystąpieniu do realizacji Stalowowolskiego Centrum Aktywności Seniora.
Spotkanie miało miejsce w budynku Centrum 4, gdzie na ostatniej kondygnacji powstanie centrum senioralne. Uczestniczył w nim prezydent Lucjusz Nadbereżny i przewodniczący Rady Seniorów Józef Górniak. Projekt i koncepcję nowej siedziby opiniowała całą stalowowolska „rada starszych”. Posiedzenie odbyło się dziś na miejscu. Koncepcja przygotowana będzie do końca listopada, później ogłoszony zostanie stosowny przetarg/
- W Stalowej Woli działa 14 klubów senioralnych. Są to stowarzyszenia, kluby. Ci ludzie tułają się po różnych miejscach. Są przy spółdzielniach, są przy kościele, domach kultury- mówił Józef Górniak.
Koniecznym stało się więc zintegrowanie całego środowiska w jednym miejscu. Kluby seniorów liczą od około 25 do 140 osób. Dostatecznie duża siedziba z lokalizacją, która pasowałaby większości była jedynie w Centrum 4, czyli lokalu należącym do Spółdzielni Mieszkaniowej. Udało się pozyskać niemal 100m2 w porozumieniu z SM. Prace nad przystosowaniem pomieszczeń do celów senioralnych potrwają do 2020 roku. Rada Seniorów koncepcję zaakceptował jednogłośnie.
- W Stalowej Woli środowisko senioralne jest wyjątkowo silne, wyjątkowo prężne. To co cieszy, to to, że Rada Seniorów całym środowiskiem, wspólnie napisała program funkcjonalny tego miejsca. Architekci dobrali odpowiednie rozwiązania techniczne, przestrzeń, aby spełnić oczekiwania naszych seniorów - mówił Lucjusz Nadbereżny.
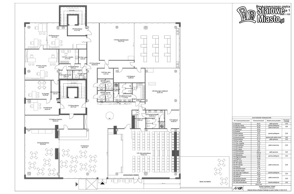
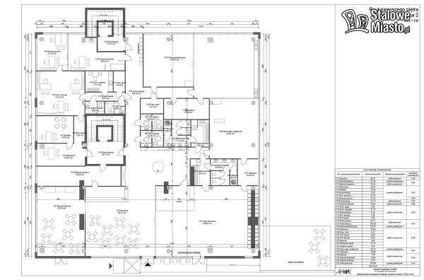
Jak wyjaśnił prezydent powierzchnia Stalowowolskiego Centrum Aktywności Seniora będzie „mobilna”, dostosowywana na bieżąco do danych potrzeb w zależności od tego, czy będzie to spotkanie, czy zaplanowane wydarzenie. Wejście do budynku zmieni się, bo od strony Al. Jana Pawła II zostanie zainstalowana winda. Obecnie, by dostać się na górę trzeba pokonać niebezpieczne schody.
W środku wydzielona zostanie sala widowiskowo- artystyczna.
- To ukłon w stronę niesamowitych pasji artystycznych, kulturalnych, chóralnych, które możemy podziwiać na Dniach Seniora i na innych wydarzeniach, które są organizowane przy udziale środowiska senioralnego- mówił prezydent.
W Centrum znajdzie się również kawiarenka. Będzie w niej można, głównie do południa, nie tylko napić się czegoś ciepłego, spotkać się, porozmawiać, ale i zagrać w szachy czy brydża. Popołudniami w tym pomieszczeniu będą odbywać się spotkania tematyczne, jubileuszowe. Planowane jest również otworzenie sal: języków obcych, komputerowej (zamienianej na salę bankietową), kuchennej, prac ręcznych, fitnessu, ćwiczeń fizycznych, zajęć wokalnych, a także porad prawnych i medyczna.
Przewidziano również część administracyjną dla osób prowadzących animację, zajęcia i dla stowarzyszeń, które będą tam się mieścić (na dokumentację i sprawy biurowe). Ciekawym pomysłem zaproponowanym przez architektów jest możliwość dobudowania tarasu letniego (zielony dach). Całość ma być dostosowana do potrzeb osób niepełnosprawnych.
Seniorzy złożyli w magistracie wniosek, aby Centrum stanowiło odrębną jednostkę organizacyjną miasta. Jak zapowiedział prezydent gmina będzie się starać o pozyskanie środków na to zadanie z programu Senior+ i Dostępność +.
Stalowowolskie Centrum Aktywności Seniora ma powstać za kwotę około 4 mln zł. Comiesięcznie będzie odprowadzany czynsz za użytkową powierzchnię do Spółdzielni Mieszkaniowej.
Przewiń do komentarzy























Komentarze