Hejterska narracja partyjna, czy dobre pomysły?
Powraca temat żłobko- przedszkola, które gmina ma wkrótce budować dla swoich najmłodszych obywateli. O to, czy wszystko zrobiono jak należy, pokłóciły się podczas sesji dwie strony.
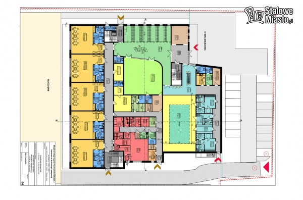
Integracyjne żłobko- przedszkole to dumny projekt miasta. Ma wyróżniać się na tle innych takich placówek w Polsce chociażby tym, że będzie mieć basen. Oczywiście kolejny tego typu obiekt jest bardzo potrzebny. I choć ta nowa placówka nie zaspokoi wszystkich potrzeb, jest krokiem ku lepszemu. Przypominamy, że wielkie otwarcie ma mieć miejsce we wrześniu 2020 roku. Wątpliwości niektórych mieszkańców budzą pewne dość drogie rozwiązania, które mają być zastosowane podczas budowy obiektu. Chodzi tu między innymi o basen, z którego będą mogły korzystać dzieciaki. Nie będą mogli kąpać się w nim mieszkańcy osiedla, jak to było wcześniej mówione. Basen powstanie na potrzeby dzieci.
- Jest to niezbędne z punktu widzenia prowadzenia rehabilitacji, nie tylko dla dzieci z tej jednostki, która zostanie wybudowana, ale również ze wszystkich innych placówek, stowarzyszeń, które wyrażą taką chęć. Chodzi o to, by na tym majątku publicznym, nowoczesnym miejscu, przystosowanym dla dzieci niepełnosprawnych, taka rehabilitacja mogła być prowadzona, również w godzinach popołudniowych- mówił podczas sesji Rady Miasta prezydent Lucjusz Nadbereżny.
Włodarz Stalowej Woli ma nadzieję, że miasto otrzyma dofinansowanie do zadania, mimo że o pieniądze będzie walczyć wiele innych samorządów. Dlaczego zdecydowano się na zmianę pierwotnego projektu? „Statystyki potrzeb” są bolesne. Na 90 miejsc w starym żłobku chętnych w tym roku było o wiele więcej (67 dzieci wciąż widnieje na liście rezerwowej). W nowym żłobku, gdzie jest 65 miejsc, na liście oczekujących jest jeszcze 70 maluszków. W tym roku brakło więc około 140 miejsc. Wielu rodziców wiedząc, że nie ma szans na przyjęcie, w ogóle nie zawraca sobie głowy składaniem dokumentów. Część od razu szuka niani, babci lub zapisuje dziecko do prywatnej placówki lub, jeśli finanse na to nie pozwalają, decyduje się zrezygnować z pracy. Biorąc pod uwagę liczbę urodzeń w mieście w 2015 roku mieliśmy 2075 dzieci w wieku od 0 do 3 lat, w 2016 roku- 2022, w 2017 roku- 2083, w 2018 roku- 2060. Obecnie mamy 155 miejsc w żłobku, co jest dosłownie maleńką kroplą w wielkim morzu potrzeb. W poprzednim projekcie żłobko- przedszkola przewidywano 45 miejsc w oddziale żłobkowym. W tym „przerobionym” projekcie wygospodarowano już tych miejsc 95 (oddział przedszkolny ma liczyć 100 dzieci, łącznie obiekt pomieści 195 maluchów). Całkowita wartość projektu wynosi 20 mln 189 tys. 702 zł. Wartość kwalifikowana projektu (obiekt pasywny z wymaganiami energetycznymi, który ma spełniać szereg wymogów) jest duża. Za to później zmniejszą się koszty utrzymania, co nie będzie bez znaczenia. Z drugiej strony bez tych zastosowań nie będzie możliwe otrzymanie dofinansowania, a to może wynosić maksymalnie 65% (9 mln 514 tys. 571 zł). Miasto przygotowało taki projekt, który pozwoli na uzyskanie największej możliwej kwoty. Pojawią się też koszty niekwalifikowane, związane np. z oświetleniem zewnętrznym, budową placu zabaw, ogrodzeniem, wyposażeniem ruchomym. Na wyposażenie obiektu miasto będzie ubiegać się o środki z programu „Maluch +” (35 tys. na 1 miejsce, maksymalnie nie więcej niż 2 mln zł). To również „skróci” listę wydatków własnych.
Głos w dyskusji zabrała radna Renata Butryn. Ona również zwróciła uwagę na fakt zbyt małej liczby wolnych miejsc w żłobkach i przedszkolach miejskich, co zmusza rodziców do korzystania z placówek prywatnych, a w tych bardzo często brakuje choćby porządnego placu zabaw, co sprawia, że część stalowowolskich dzieci wychowuje się w niższych standardach. Według radnej można by niższym kosztem wybudować nowoczesną placówkę dla dzieci z większą liczbą miejsc. Jako przykład podała Rudnik nad Sanem, gdzie gmina za 7 mln zł (z 4 mln dofinansowaniem) wybudowała piękne, dobrze wyposażone i funkcjonalne żłobko- przedszkole (45 miejsc w oddziale żłobkowym i 100 w przedszkolnym). Maluchy mają tam do dyspozycji aż 3 place zabaw. Radna przypomniała również o przedszkolach w systemie szwedzkim, które wkrótce nie będą spełniać norm i trzeba będzie je sukcesywnie zastępować nowymi obiektami. Co wówczas stanie się z przedszkolakami w mieście? Budowa żłobko- przedszkola przy KEN pochłonie wiele milionów złotych. Czy w tej sytuacji będzie nas stać na kolejne placówki? Czy nie lepiej wybudować taniej, a więcej?
- Czy rzeczywiście będzie nas na wszystko stać i czy zagwarantujemy dla wszystkich dzieci takie miejsca, z których rodzice będą zadowoleni?- pytała radna.
Prezydent odpowiedział, że działania miasta są jak najbardziej opłacalne z punktu widzenia ekonomicznego. Żłobko- przedszkole przy KEN (które ma powstać w miejscu dawnego Przedszkola nr 18) miało początkowo przyjąć łącznie 130 dzieciaków, co na tak duże miasto jest znikomą ofertą w stosunku do potrzeb. Ostatecznie zmienił się plan, a do placówki uczęszczać będzie niemal 200 dzieci. Taki obiekt będzie spełniał wymogi, zwłaszcza jeśli chodzi o potrzeby dzieci niepełnosprawnych, bo placówka ma mieć charakter integracyjny.
- Ten projekt jest naprawdę unikalny z punktu widzenia programu i przygotowania. Doceniam ten głos, że można to zrobić inaczej, że pani przewodnicząca ma inne pomysły. Proszę powiedzieć gdzie znajdę, w którym programie operacyjnym, w którym dofinansowaniu, czy to rządowym, czy europejskim, czy krajowym lepsze środki finansowe niż zostały zaproponowane w tym programie? Gdzie Miasto Stalowa Wola będzie mogło pozyskać bardziej optymalny udział finansowy? Proszę to wskazać, bo same pomysły są oczywiście bardzo fajne, ale obawiam się, że z pani głosu wynika tak, że pani nie poprze tego projektu. Tak odczytałem tę wypowiedź. Mając inny pomysł przekreśla pani ten projekt, dlatego chciałbym tutaj jasnej deklaracji. Potrzeba nam jasnych deklaracji w tym zakresie, abyśmy rozmawiali o faktach. Jeżeli jest inny program, z którego moglibyśmy lepiej to sfinansować, w którym moglibyśmy pozyskać więcej środków finansowych, bo tutaj, jeżeli wszystko dobrze pójdzie, będzie to 12 mln zł licząc razem z programem „Maluch plus”, to proszę pokazać, że jest taki program- mówił Lucjusz Nadbereżny.
Słowa prezydenta co do tego, że jeśli nie będzie się głosować „za”, będzie głosować się „przeciw” oburzyły radną Renatę Butryn.
- Nie życzę sobie takich insynuacji na przyszłość. W swoim głosowaniu biorę pod uwagę wszystkie aspekty: zadłużenie miasta, możliwości miasta, zagrożenia wynikające z tego zadłużenia. To jest mój tok myślenia, nie chodzi tu o jedną inwestycję, na temat której się wypowiedziałam. Jeśli chodzi o efektywność tworzenia miejsc w przedszkolu, to mamy trzy razy mniejszą efektywność od Rudnika. Również w żłobkach- mówiła Renata Butryn.
Radna ponownie podkreśliła, że za takie pieniądze można by wybudować, wzorem Rudnika, placówkę, która mogłaby przyjąć więcej dzieci. O problemie mówiła również Agata Krzek.
- Wskaźniki mamy jakie mamy, ale to się też nie wzięło znikąd. Niektórzy z państwa byli w poprzednich kadencjach radnymi. Sami państwo doskonale wiecie, że nic w Stalowej Woli się do tej pory nie robiło, nie budowało. Mieszkańcy, młode małżeństwa zgłaszały, że nie mają co z dziećmi zrobić, stąd też nasza decyzja o budowie żłobka. Niestety, wszystkie dzieci się nie dostają, bo jak się okazuje, jeden dodatkowy żłobek nie rozwiązał sprawy. Przedszkola też są potrzebne- mówiła Agata Krzek.
Radna podkreśliła, że pamięta z przeszłości sesję, na którą przyszła wraz z grupą osób (nie była jeszcze wtedy radną), żeby zaprotestować przeciwko likwidacji przedszkoli w mieście. Nikt wówczas nie chciał ich wysłuchać.
- Odnoszę takie wrażenie, że jeżeli my coś staramy się dobitnie wyartykułować, to wtedy łamiemy demokrację, a to nie działa w drugą stronę, ale jak wy czegoś od nas oczekujecie, to wtedy my nie odpowiadamy, albo odpowiadamy dosyć dobitnie, to my tę demokrację łamiemy. Ja mam takie wrażenie, że odkąd państwo tu przyszliście, że my mamy po katolicku nadstawiać drugi policzek i nic się nie odzywać i siedzieć z założonymi rękami- mówiła Agata Krzek.
W piątek, podczas sesji, z dwóch stron padały różne pytania, wiele było szarpaniny słownej, wyjaśnień, tłumaczenia się, wiele nerwów i zbędnych emocji, mniej konstruktywnej dyskusji, a jeszcze mniej konkretnych propozycji. Prezydent zapewnił, że będzie bronił swoich pomysłów, a zwłaszcza swoich ludzi, zawsze wtedy, gdy padnie o jedno słowo za dużo, a przecież różne podejrzenia pojawiały się podczas tworzenie projektu żłobko- przedszkola.
- Ja, proszę państwa, będę zawsze w ten sposób stawał tutaj, jeśli będą padały nieprawdziwe informacje, również w kontekście pytania. Proszę nie liczyć na to, że ja oto tak schylę sobie głowę i powiem: no, dobrze. Nie, nie będzie tak, szanowni państwo. Wzajemnie uczmy się odpowiedzialności za słowo. Również państwo mnie uczą, wymagają ode mnie odpowiedzialności za to słowo. Jeżeli gdzieś wprowadzę w błąd, przekażę złą informację, proszę mnie z tego rozliczać, ale proszę rozliczać na faktach, danych, informacjach, które państwo uzyskujecie, a nie interpretując czyjąś wypowiedź. Apeluję, żebyście państwo byli precyzyjni- mówił prezydent Lucjusz Nadbereżny.
I znów zapytał, czy opozycja będzie głosować za projektem budowy żłobko- przedszkola, czy przeciw? Jedna i druga strona mówiła dziś wprawdzie o odpowiedzialności i „braniu na klatę” rzeczywistości, ale każda ze stron, pojmowała to jednak na swój sposób.
- Stoję przed państwem i mieszkańcami Stalowej Woli, żeby tą odpowiedzialność wziąć, nie lawirować, nie mówić, że są inne pomysły, tylko wykorzystać szansę, która jest przed Stalową Wolą i rozwiązać olbrzymi problem, który jest. Bardzo proszę, aby każdy radny, w tym głosowaniu, które tutaj będzie określił się wyraźnie: czy jest za powstaniem tego żłobko- przedszkola, powstania tych 195 miejsc dla dzieci, czy jest przeciwko. Nie „może”, „jak”, wstrzymywać się- niech będzie między nami jednoznaczność. To też jest nauka odpowiedzialności- powiedział prezydent.
Różne wizje pracy na rzecz miasta ścierały się w piątek jak podczas najlepszej burzy z piorunami. Trudno przyznać, sądząc po długości sesji, że któraś ze stron dała się ostatecznie do czegokolwiek przekonać. Zgodnie jedynie mówiono o zaangażowaniu pracowników magistratu w prace związane z projektami. Gorzej już było z wyborem projektów. Na pewno dyskusja zdominowana była przez kilka osób. W końcu do głosu dopuszczono zastępcę naczelnika Wydziału Inwestycji, Transportu i Promocji Gospodarczej Miasta Andrzeja Wojtasia, który rzeczowo wyjaśnił niektóre niezrozumiałe dla niektórych radnych procedury i drogi, którymi zdecydowano się iść przystępując do budowy żłobko- przedszkola.
W Stalowej Woli są 4 przedszkola typu szwedzkiego. Są w lepszym lub gorszym stanie technicznym. Gmina już w przeszłości chciała je „wymieniać” na inne, ale nie było na to środków. Obecnie jest tylko taka możliwość pozyskania środków z zewnątrz, z jakiej właśnie chce skorzystać miasto. Jeśli nie wykorzystamy tej możliwości, inne mogą się nie pojawić- przekonywał w piątek Wojtaś. Miasto buduje przy KEN przedszkole integracyjne, bo wkrótce trzeba będzie zlikwidować jedną z takich placówek („Dwunastka”) ze względu na zły stan technicznym. Andrzej Wojtaś wyjaśnił też, dlaczego przedszkole pasywne jest tak drogie.
- Rok 2021 narzuca kolejne wymagania, jeśli chodzi o docieplenie ścian, przegród itd. i tutaj różnica pomiędzy tymi warunkami roku 2021 a budownictwem pasywnym już nie jest tak wielka i my musimy tym wymaganiom sprostać. Będzie to droższe, ale to co powiedział prezydent, będzie tańsze w utrzymaniu, a druga rzecz- wpisujemy się w te trendy. Najtańszą energią jest ta, której nie musimy wykorzystać, dlatego też musimy iść w tym kierunku. To kierunek, który trzeba podjąć. Myślę, że z państwa udziałem będzie można- powiedział Andrzej Wojtaś.
Mimo długiej dyskusji, kolejnej, ostrej wymianie zdań, zarzutach opozycji, że wszystko to jedynie „hejterska narracja partyjna”, uchwała nie została przegłosowana jednogłośnie tak, jak życzyłby tego sobie prezydent, a 14 głosami „za” (Mariusz Bajek, Maria Chojnacka, Łukasz Durek, Ilona Kaczmarek, Andrzej Kochan, Agata Krzek, Elżbieta Kulpa, Paulina Miśko, Karolina Paleń, Piotr Rut, Jan Sibiga, Stanisław Sobieraj, Łukasz Warchoł, Zaborowski Franciszek. Jeden radny (Andrzej Szymonik) był przeciwny, od głosu wstrzymało się 6 osób (Jerzy Augustyn, Leszek Brzeziński, Renata Butryn, Joanna Grobel- Proszowska, Damian Marczak, Dariusz Przytuła). Dwóch radnych nie było obecnych (Paweł Madej, Lucjan Małek).





Komentarze