Rozpoczęły się prace przy rozbudowie PSP 3
Trzy prostopadłościenne asymetryczne bryły powiązane ze sobą szklaną wstęgą, otulającą budynek z niemal każdej strony. Tak w krótkich słowach już wkrótce będzie wyglądać Publiczna Szkoła Podstawowa nr 3 im. Bohaterów Westerplatte. Rozpoczęły się już prace rozbudowy tego obiektu.
– Dla samorządu Stalowej Woli edukacja jest najważniejszą inwestycją. Właśnie dlatego angażujemy miejskie środki w rozwój infrastruktury szkolnej – mówi prezydent Lucjusz Nadbereżny.
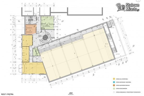
„Trójka” zostanie rozbudowana o piękną i funkcjonalną halę sportową z pełnym zapleczem rozwojowym jak siłownie, sale do fitnessu oraz zajęć korekcyjnych, a także bardzo istotne dla komfortu uczniów zaplecze szatniowe, którego do tej pory tam brakowało.
Jak podkreśla włodarz miasta, w projektowanym budynku postanowiono pokłonić się w stronę tradycji, architektura została w pełni dostosowana do klimatu starej części Stalowej Woli. Nowa hala sportowa uzyska formę trzech prostopadłościennych asymetrycznych brył powiązanych ze sobą szklaną wstęgą, jaką dostrzec można również w najstarszych budynkach Stalowej Woli. Hala pokryta będzie dachem szedowym, bezpośrednio nawiązującym do wielkoprzemysłowych obiektów części Centralnego Okręgu Przemysłowego. Między nowym budynkiem i starą bryłą szkoły utworzony zostanie dziedziniec, na którym dzieci będą mogły spędzać przerwy oraz odbywać zajęcia lekcyjne w cieplejsze dni. Na jednej ze ścian planowane jest wykończenie z tynku pokrytego czarną farbą kredową, gdzie pojawi się motyw przewodni grafiki Centralnego Okręgu Przemysłowego.
Obiekt będzie przystosowany do potrzeb osób niepełnosprawnych. Rozbudowa powinna zakończyć się wraz z końcem sierpnia 2020 roku.






Komentarze